Bilocale in vendita

Milano, Via Cadibona - Molise
€ 199.000
2 locali 2 locali
40 Mq 40 Mq
1 bagno 1 bagno

Bilocale in vendita

Milano, Via Cadibona - Molise

Descrizione annuncio

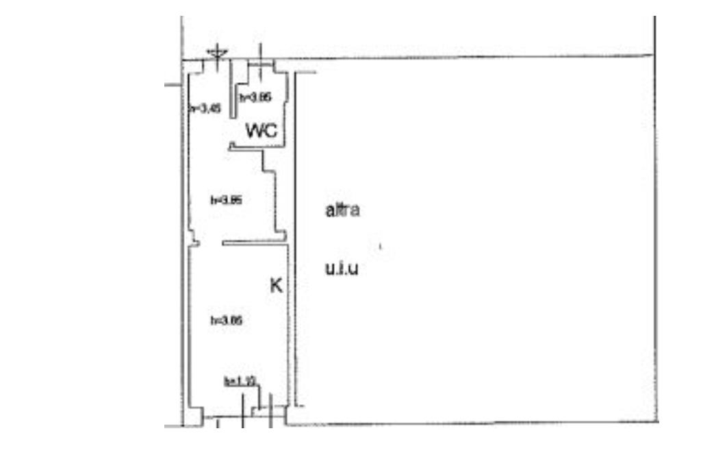
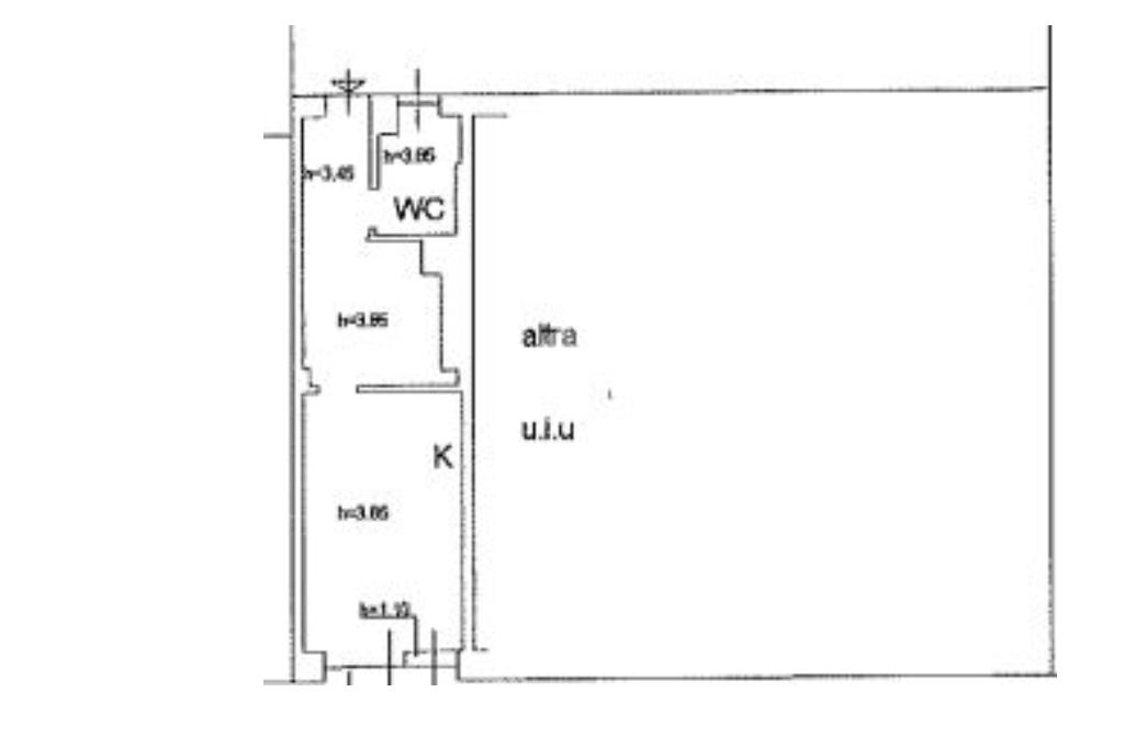
VIA CADIBONA - In contesto tranquillo e ben servito, proponiamo in vendita un BILOCALE di 40 mq, ristrutturato 5 anni fa.

Posto al piano terra con doppio ingresso indipendente, questa soluzione si presenta ideale per single, giovani coppie o come investimento.

L'immobile è composto da una graziosa zona giorno con cucina a vista, disimpegno, bagno finestrato completo di box doccia e camera da letto soppalcata che garantisce massima ottimizzazione degli spazi.

Presenza di Aria condizionata con sistema canalizzato e comoda cantina di pertinenza.

Ci troviamo in una zona molto strategica e ben servita da tutti mezzi di superfice come anche il passante ferroviario di Porta Vittoria. Il quartiere è soggetto a progetti di riqualificazione come il Progetto ARIA masterplan dell'ex macello e dello IED Istituto Europeo del Design.

Vanta inoltre la presenza di attività commerciali, di diversi supermercati e alla presenza dell'ortomercato piu grande di Milano.

Per fissare un sopralluogo inviare un Whatsapp o sms al n. 333/9194025 indicando: il vostro nome e cognome.

Verrete ricontattati al più presto per fissare una visita.

Chiamaci allo 02.54050390 o vieni a trovarci presso il nostro ufficio Affiliato Tecnocasa in Viale Umbria, 94 Milano.

Pubblicità con finalità solo illustrativa. La pubblicità non costituisce vincolo

Mostra tutto

Nelle vicinanze

Trasporto pubblico Trasporto pubblico
Brenta
Brenta
1,3 Km
Lodi T.I.B.B.
Lodi T.I.B.B.
1,4 Km
stazione di Milano Porta Vittoria
stazione di Milano Porta Vittoria
670 m
Milano Porta Romana
Milano Porta Romana
1,2 Km
Via del Turchino - Via Maspero
Via del Turchino - Via Maspero
250 m
Ricariche auto elettriche Ricariche auto elettriche
A2A Isola Digitale Largo Marinai D'Italia
1,0 Km
BeCharge Milano Bacchiglione
1,2 Km
A2A Corso Lodi
1,4 Km
BeCharge Milano Botta
1,5 Km
A2A Isola Digitale Corso Lodi
1,7 Km
Scuole Scuole
Istituto comprensivo "Tommaso Grossi"
110 m
Istituto d'istruzione superiore Pietro Verri
720 m
Liceo scientifico statale Albert Einstein
800 m
Scuola elementare Cinque Giornate
870 m
Scuole
950 m
Farmacia Farmacia
Farmacia
280 m
Farmacia Insubria
370 m
San Camillo
500 m
Farmacia Fiore
660 m
Antica Farmacia del Verziere
960 m
Ospedali Ospedali
Asl
1,3 Km
Ospedale Macedonio Melloni
1,5 Km
Ospedali
2,1 Km
Casa di cura "Città di Milano"
2,1 Km
Centro Medico Milano Tree Of Life S.r.l.
2,3 Km
Supermercati Supermercati
Aldi
120 m
Punto Simply
580 m
Pam
590 m
Sigma - Fratelli Izzi
720 m
Esselunga
810 m
Negozi Negozi
I sapori di Denise
290 m
Negozi
310 m
Anfossi
480 m
OVS Outlet
540 m
Dolci magie di pane
550 m
Bar Bar
New Coffée
320 m
L'artista
340 m
Tiffany
340 m
Samuel
460 m
Blue Angels
510 m
Ristoranti Ristoranti
Trattoria del Nuovo Macello
300 m
Insubria
330 m
Sabor latino
390 m
La sirenetta
420 m
Bar Trattoria Victoire
500 m
Mostra tutto

Caratteristiche

Rif.:
61125519
Piano:
Basso di 5
Totale piani:
5
Camere da letto:
1
Arredamento:
Completo
Condizionamento:
Autonomo
Mostra tutto
Prezzo Prezzo
€ 199.000
Rata mutuo Rata mutuo
€ 938 / mese
Spese annue Spese annue
€ 2.400
Proponi il tuo prezzoProponi il tuo prezzo

Classe Energetica

F
F
F
F
F
F
F
F
F
EP invernale del fabbricato:
EP estiva del fabbricato:
Anno di costruzione:
1955
Riscaldamento:
Centralizzato
Tipo impianto:
A radiatori
Tipo alimentazione:
Metano

Ti interessa visionare l'immobile?

Fissa un appuntamento  Fissa un appuntamento

Richiedi informazioni

Clicca su Leggi per aprire l'informativa
* Questi campi sono obbligatori

Calcola il tuo mutuo

Semplice e senza impegno
Anticipo

( % )
Mutuo

( % )

pochi semplici passi

inserisci i tuoi dati
Questionario completato
Grazie per aver richiesto un appuntamento senza impegno con un nostro Consulente del Credito e Assicurativo.

Hai inserito correttamente tutti i dati necessari e a breve riceverai una e-mail con un link da convalidare per inviare i tuoi dati.
Affiliato
Studio Umbria 94 Srl
Viale Umbria, 94 20135 Milano (MI)

Il nostro staff


  • Angelica Oriolo
    Affiliata

  • Elison Vella
    Coordinatrice
Viale Umbria, 94 20135 Milano (MI)
Zona: Cadore-Umbria-Martini-Molise
Mostra su mappa
Orari: da lunedì a venerdì 09.00 - 13.00 / 14.00 - 20.00; sabato 09.00 - 18.00
Affiliato
Studio Umbria 94 Srl
Viale Umbria, 94 20135 Milano (MI)

2026 Tecnocasa Franchising S.p.A. - P. IVA 08365160152 - Via Monte Bianco 60/A 20089 Rozzano (MI). Ogni agenzia ha un proprio titolare ed è autonoma. Privacy policy | Policy utilizzo | Cookie policy