Bilocale in vendita

Milano, Via Caposile - Martini
€ 389.000
2 locali 2 locali
70 Mq 70 Mq
1 bagno 1 bagno

Bilocale in vendita

Milano, Via Caposile - Martini

Descrizione annuncio

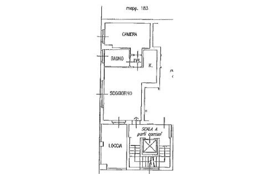
VIA CAPOSILE - In prossimità del parco 8 Marzo, In contesto moderno e signorile, proponiamo in VENDITA splendido BILOCALE di recente costruzione, in Classe Energetica A, situato al primo piano con ascensore, in stabile costruito nel 2017..

All' ingresso veniamo subito accolti da una luminosa zona giorno con cucina a vista e con accesso ad un grande terrazzo di circa 15mq, ideale per pranzi all'aperto o momenti di relax. Un piccolo disimpegno ci introduce invece alla camera da letto e al bagno finestrato.

Tra le Caratteristiche principali troviamo:

Doppia esposizione sud ovest che garantiscono luminosità costante;Infissi doppio vetro con doppia apertura e tapparelle elettriche;Riscaldamento centralizzato e raffrescamento a pavimento con VMC;Cantina di pertinenza;Ascensore;Videocitofono

Possibilità di arredo.

Luminoso, silenzioso e pronto da abitare, l'appartamento si trova in una zona servita da mezzi pubblici, quali Bus 90,91, 93 e Tram 12, 16, negozi, scuole e aree verdi. Soluzione perfetta per single o coppie.

Presente anche il passante ferroviario di Porta Vittoria. È possibile raggiungere l'università di Città Studi con un unico collegamento di autobus.

Per fissare un sopralluogo inviare un Whatsapp o sms al n. 333/9194025 indicando: il vostro nome e cognome.

Chiamaci allo 02.54050390 o vieni a trovarci presso il nostro ufficio Affiliato Tecnocasa in Viale Umbria, 94 Milano.

Pubblicità con finalità solo illustrativa. La pubblicità non costituisce vincolo.

Mostra tutto

Nelle vicinanze

Trasporto pubblico Trasporto pubblico
Lodi T.I.B.B.
Lodi T.I.B.B.
1,6 Km
Porta Romana
Porta Romana
1,7 Km
stazione di Milano Porta Vittoria
stazione di Milano Porta Vittoria
210 m
stazione di Milano Dateo
stazione di Milano Dateo
1,2 Km
Viale Molise
Viale Molise
70 m
Ricariche auto elettriche Ricariche auto elettriche
A2A Isola Digitale Largo Marinai D'Italia
690 m
A2A Corso Indipendenza
1,3 Km
A2A Isola Digitale Cinque Giornate
1,4 Km
BeCharge Milano Botta
1,4 Km
A2A Corso Lodi
1,5 Km
Scuole Scuole
Scuola elementare Cinque Giornate
380 m
Istituto comprensivo "Tommaso Grossi"
590 m
Liceo Scientifico Statale Renato Donatelli
590 m
Scuole
860 m
Istituto d'istruzione superiore Pietro Verri
890 m
Farmacia Farmacia
San Camillo
100 m
Antica Farmacia del Verziere
480 m
Farmacia Fiore
500 m
Farmacia Insubria
630 m
Farmacia Toschi
660 m
Ospedali Ospedali
Ospedale Macedonio Melloni
1,0 Km
Asl
1,7 Km
Centro Medico Milano Tree Of Life S.r.l.
1,8 Km
Ospedali
1,9 Km
Casa di cura "Città di Milano"
2,0 Km
Supermercati Supermercati
Esselunga
320 m
Aldi
370 m
Pam
450 m
Bennet
590 m
Carrefour Market
710 m
Negozi Negozi
Dolci magie di pane
150 m
Bollani
350 m
OVS Outlet
370 m
Leon
480 m
Lucy
480 m
Bar Bar
Bar
190 m
Giada
240 m
Bachelite cLab
320 m
Cafè del Pasco
340 m
Bar Gusto
510 m
Ristoranti Ristoranti
Bar Trattoria Victoire
30 m
L'essenza di Mina
130 m
Pizzeria San Paolo
230 m
Trattoria del Nuovo Macello
290 m
ShangJing
320 m
Mostra tutto

Caratteristiche

Rif.:
61130361
Piano:
1 di 3 con ascensore (Piano medio)
Terrazzi:
1
Camere da letto:
1
Arredamento:
Completo
Condizionamento:
Centralizzato
Mostra tutto
Prezzo Prezzo
€ 389.000
Rata mutuo Rata mutuo
€ 1.834 / mese
Spese annue Spese annue
€ 3.900
Proponi il tuo prezzoProponi il tuo prezzo

Classe Energetica

A2
A2
A2
A2
A2
A2
A2
A2
A2
EP globale non rinnovabile:
19.75 kW h/m² anno
EP globale rinnovabile:
19.75 kW h/m² anno
EP invernale del fabbricato:
EP estiva del fabbricato:
Anno di costruzione:
2017
Riscaldamento:
Centralizzato
Tipo impianto:
A pavimento
Tipo alimentazione:
Metano

Ti interessa visionare l'immobile?

Fissa un appuntamento  Fissa un appuntamento

Richiedi informazioni

Clicca su Leggi per aprire l'informativa
* Questi campi sono obbligatori

Calcola il tuo mutuo

Semplice e senza impegno
Anticipo

( % )
Mutuo

( % )

pochi semplici passi

inserisci i tuoi dati
Questionario completato
Grazie per aver richiesto un appuntamento senza impegno con un nostro Consulente del Credito e Assicurativo.

Hai inserito correttamente tutti i dati necessari e a breve riceverai una e-mail con un link da convalidare per inviare i tuoi dati.
Affiliato
Studio Umbria 94 Srl
Viale Umbria, 94 20135 Milano (MI)

Il nostro staff


  • Angelica Oriolo
    Affiliata

  • Elison Vella
    Coordinatrice
Viale Umbria, 94 20135 Milano (MI)
Zona: Cadore-Umbria-Martini-Molise
Mostra su mappa
Orari: da lunedì a venerdì 09.00 - 13.00 / 14.00 - 20.00; sabato 09.00 - 18.00
Affiliato
Studio Umbria 94 Srl
Viale Umbria, 94 20135 Milano (MI)

2025 Tecnocasa Franchising S.p.A. - P. IVA 08365160152 - Via Monte Bianco 60/A 20089 Rozzano (MI). Ogni agenzia ha un proprio titolare ed è autonoma. Privacy policy | Policy utilizzo | Cookie policy