Bilocale in vendita

Milano, Via Cadibona - Molise
€ 238.000
2 locali 2 locali
61 Mq 61 Mq
1 bagno 1 bagno

Bilocale in vendita

Milano, Via Cadibona - Molise

Descrizione annuncio

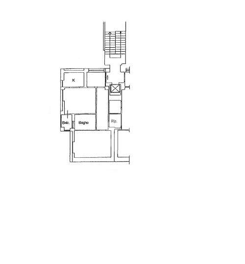
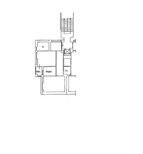
Porta Vittoria - in via Cadibona, proponiamo IN VENDITA, BILOCALE di 61 mq con BALCONE, posto al 6 PIANO con ascensore, in uno stabile con portineria mezza giornata e posto bici.

L’appartamento si presenta da ristrutturare ma grazie alla sua pianta regolare è ideale per una facile personalizzazione degli spazi interni in base alle proprie esigenze.

Attualmente è così suddiviso: ingresso su zona giorno con cucinotto separato ed accesso al balcone, attraverso un piccolo corridoio abbiamo accesso ad una camera da letto matrimoniale, un bagno finestrato e un comodo ripostiglio.

Completa la soluzione una cantina di pertinenza.

Il Riscaldamento è centralizzato.

Ci troviamo in una zona molto strategica e ben servita da tutti mezzi di superfice come l'autobus 90, 91, 93, 66, tram 12 e 16 e passante ferroviario di Porta Vittoria.

Raggiungiamo l'università di Città Studi con un unico collegamento di un autobus.

Per fissare un sopralluogo inviare un Whatsapp o sms al n. 333/9194025 indicando la via dell'immobile, il vostro nome e cognome oppure Chiamaci allo 02.54050390/ e verrete ricontattati al più presto per fissare una visita.

Pubblicità con finalità solo illustrativa. La pubblicità non costituisce vincolo contrattuale.

Mostra tutto

Nelle vicinanze

Trasporto pubblico Trasporto pubblico
Brenta
Brenta
1,4 Km
Lodi T.I.B.B.
Lodi T.I.B.B.
1,4 Km
stazione di Milano Porta Vittoria
stazione di Milano Porta Vittoria
630 m
Milano Porta Romana
Milano Porta Romana
1,3 Km
Via del Turchino - Via Maspero
Via del Turchino - Via Maspero
270 m
Ricariche auto elettriche Ricariche auto elettriche
A2A Isola Digitale Largo Marinai D'Italia
1,0 Km
BeCharge Milano Bacchiglione
1,3 Km
A2A Corso Lodi
1,4 Km
BeCharge Milano Botta
1,6 Km
A2A Isola Digitale Corso Lodi
1,7 Km
Scuole Scuole
Istituto comprensivo "Tommaso Grossi"
160 m
Istituto d'istruzione superiore Pietro Verri
760 m
Scuola elementare Cinque Giornate
830 m
Liceo scientifico statale Albert Einstein
840 m
Scuole
990 m
Farmacia Farmacia
Farmacia
320 m
Farmacia Insubria
400 m
San Camillo
470 m
Farmacia Fiore
660 m
Antica Farmacia del Verziere
920 m
Ospedali Ospedali
Asl
1,4 Km
Ospedale Macedonio Melloni
1,5 Km
Ospedali
2,1 Km
Casa di cura "Città di Milano"
2,2 Km
Centro Medico Milano Tree Of Life S.r.l.
2,2 Km
Supermercati Supermercati
Aldi
110 m
Pam
590 m
Punto Simply
620 m
Sigma - Fratelli Izzi
760 m
Esselunga
780 m
Negozi Negozi
I sapori di Denise
340 m
Negozi
350 m
Anfossi
520 m
Dolci magie di pane
530 m
OVS Outlet
540 m
Bar Bar
New Coffée
360 m
Tiffany
380 m
L'artista
380 m
Samuel
500 m
Blue Angels
550 m
Ristoranti Ristoranti
Trattoria del Nuovo Macello
250 m
Insubria
360 m
Sabor latino
410 m
La sirenetta
460 m
Bar Trattoria Victoire
470 m
Mostra tutto

Caratteristiche

Rif.:
61199147
Piano:
6 di 7 con ascensore (Piano alto)
Balconi:
1
Camere da letto:
1
Arredamento:
Completo
Condizionamento:
Assente
Mostra tutto
Prezzo Prezzo
€ 238.000
Rata mutuo Rata mutuo
€ 1.122 / mese
Spese annue Spese annue
€ 2.500
Proponi il tuo prezzoProponi il tuo prezzo

Classe Energetica

G
G
G
G
G
G
G
G
G
EP globale non rinnovabile:
175.00 kW h/m² anno
EP globale rinnovabile:
175.00 kW h/m² anno
EP invernale del fabbricato:
EP estiva del fabbricato:
Anno di costruzione:
1955
Riscaldamento:
Centralizzato
Tipo impianto:
A radiatori
Tipo alimentazione:
Metano

Ti interessa visionare l'immobile?

Fissa un appuntamento  Fissa un appuntamento

Richiedi informazioni

Clicca su Leggi per aprire l'informativa
* Questi campi sono obbligatori

Calcola il tuo mutuo

Semplice e senza impegno
Anticipo

( % )
Mutuo

( % )

pochi semplici passi

inserisci i tuoi dati
Questionario completato
Grazie per aver richiesto un appuntamento senza impegno con un nostro Consulente del Credito e Assicurativo.

Hai inserito correttamente tutti i dati necessari e a breve riceverai una e-mail con un link da convalidare per inviare i tuoi dati.
Affiliato
Studio Umbria 94 Srl
Viale Umbria, 94 20135 Milano (MI)

Il nostro staff


  • Angelica Oriolo
    Affiliata

  • Elison Vella
    Coordinatrice
Viale Umbria, 94 20135 Milano (MI)
Zona: Cadore-Umbria-Martini-Molise
Mostra su mappa
Orari: da lunedì a venerdì 09.00 - 13.00 / 14.00 - 20.00; sabato 09.00 - 18.00
Affiliato
Studio Umbria 94 Srl
Viale Umbria, 94 20135 Milano (MI)

2026 Tecnocasa Franchising S.p.A. - P. IVA 08365160152 - Via Monte Bianco 60/A 20089 Rozzano (MI). Ogni agenzia ha un proprio titolare ed è autonoma. Privacy policy | Policy utilizzo | Cookie policy